3D Laseraufmass
3D Laseraufmass
Entwurf Neubau
Entwurf Neubau
Ansicht Garten
Ansicht Garten
Ansicht Eingang
Ansicht Eingang
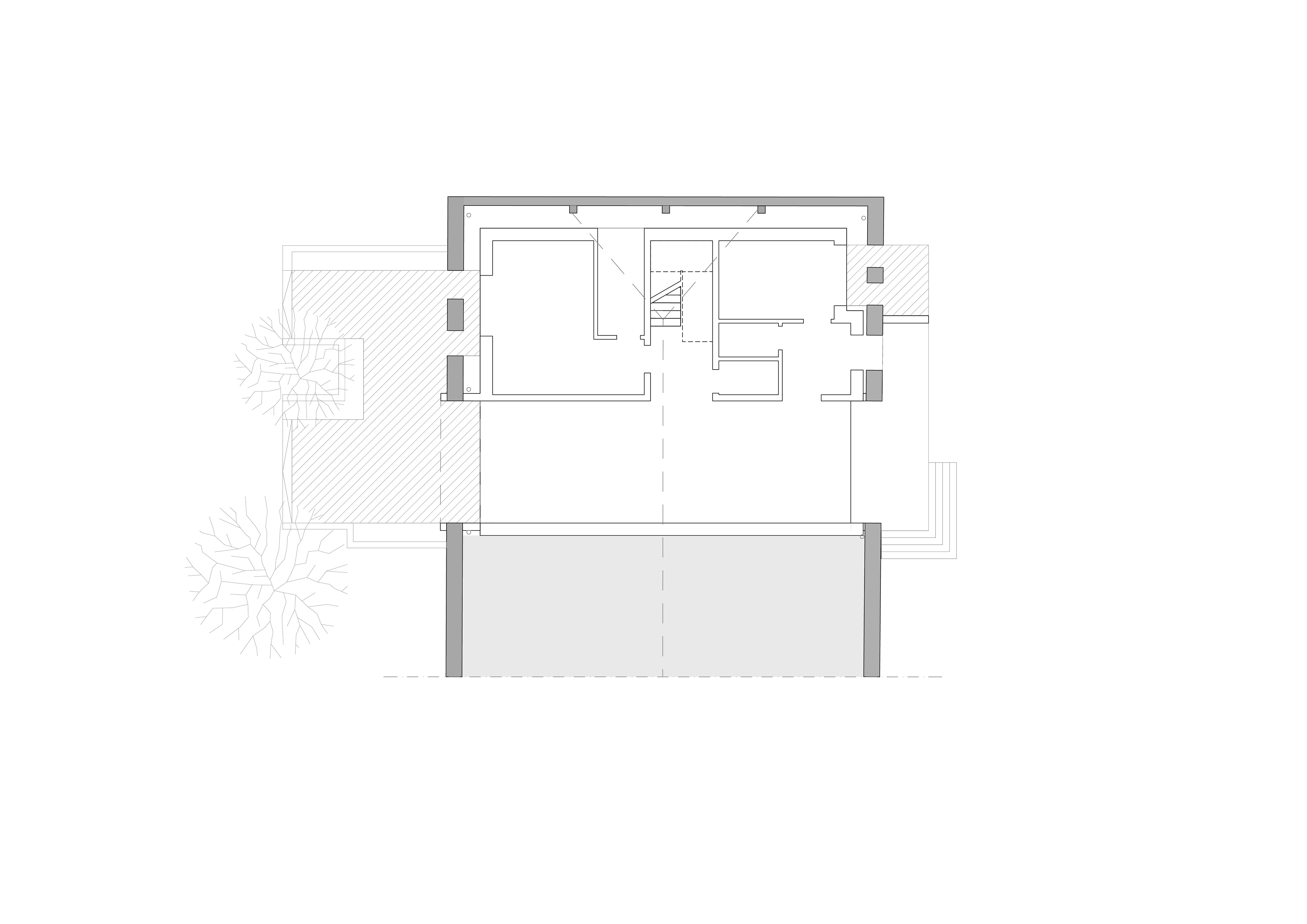
Erdgeschoss
Erdgeschoss
Obergeschoss
Obergeschoss
Umbau einer Scheune zu einem Wohnhaus
Holzrahmenbauweise mit Holzbalkendecke
Die ehemalige Scheune erhält eine neue Funktion und eine junge Familie ein neues Zuhause. Nach dem Haus-in-Haus Prinzip wurde ein Einfamilienhaus in die bestehende Kubatur der Scheune integriert. Der zentrale Küche-Essbereich erstreckt sich über die gesamte Breite des Neubaus und ist durch die bestehenden Wände der Scheune "hindurchgesteckt" und verbindet somit die Eingangszone mit dem Gartenbereich. ​​​​​​​
Auftragnehmer
RAUMAKROBATIK

Projektteam
Entwurf
non+ architekten  

Planung & Koordinierung
Raumakrobatik Wolfgang S. Becker

weitere Projekte

Back to Top